- Olivia Six
Informacje
| Budynek: | Olivia Six |
| Numer: | 140901/3105/OLW |
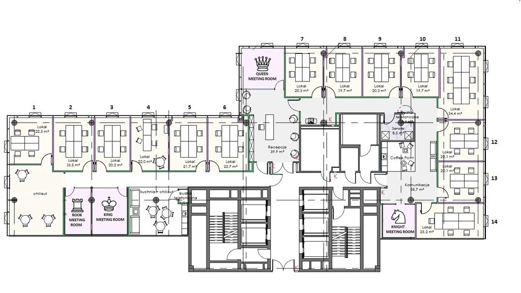
| Liczba stanowisk pracy: | 59 |
| Coworking: | Tak |
| Biuro prywatne/dedykowane: | Tak |
Udogodnienia biura
Opis
Adres: Olivia Center, Gdańsk
Olivia Center, największy kompleks biurowych w północnej Polsce. Zlokalizowany w dynamicznie rozwijającej się dzielnicy biznesowej Gdańska. Znajduje się przy al. Grunwaldzkiej 472, w bezpośrednim sąsiedztwie przystanków komunikacji miejskiej (autobusy, tramwaje, SKM). Bliskość głównych arterii komunikacyjnych oraz stacji kolejowej Gdańsk Przymorze-Uniwersytet zapewnia szybki i łatwy dojazd do wszystkich części Trójmiasta. Kompleks oferuje nowoczesne i funkcjonalne przestrzenie biurowe, dostosowane do potrzeb nawet najbardziej wymagających najemców.
Specyfikacja budynku:
•Całkowita powierzchnia biurowa: ponad 120 000 m²
•Dostępne powierzchnie biurowe do wynajęcia: od 200 m² do 10 000 m²
•Liczba budynków: 8 (Olivia Gate, Olivia Point, Olivia Tower, Olivia Four, Olivia Six, Olivia Star, Olivia Prime A, Olivia Prime B)
•Powierzchnia typowego piętra: od 1 500 m² do 3 000 m²
•Liczba kondygnacji naziemnych: do 35 (Olivia Star)
•Liczba kondygnacji podziemnych: 3 (parkingi, magazyny)
•Certyfikaty: BREEAM, LEED (potwierdzające zastosowanie energooszczędnych i ekologicznych rozwiązań)
Udogodnienia:
•Profesjonalnie wyposażone sale konferencyjne i eventowe do wynajęcia
•Szeroki wybór punktów gastronomicznych w obrębie kompleksu
•Nowoczesne centrum fitness dostępne dla najemców
•Infrastruktura rowerowa: miejsca rowerowe, szatnie, prysznice, stacja napraw
•System zarządzania budynkiem: zaawansowany system BMS zapewniający komfort i bezpieczeństwo
•Nowoczesne przestrzenie coworkingowe i biura serwisowane
•Całodobowa ochrona i monitoring.
Aby uzyskać więcej informacji lub umówić się na prezentację budynku, prosimy o kontakt!
OCEŃ
5/5 (1)
LOKALIZACJA










