Widok Towers - Office
Information / offer
| Building: | Widok Towers |
| Number: | 144711/3105/OLW |
| Area: | 344.00 m2 |
| Rent per sqm: | 26.00 EUR / m² |
| The royalty: | 28.00 PLN / m² |
| Available areas: | 344.00 - 4000.00 |
Building standard
Description
Welcome to explore the offer for modern office space in a prestigious office building with a view of Warsaw's City Centre (Śródmieście).
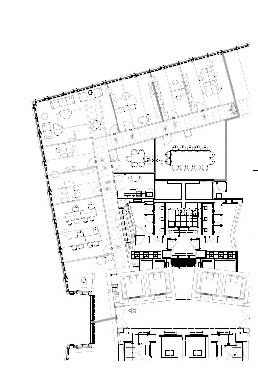
The premises are located on the 11th floor of the prestigious Widok Towers office building. The 357 sq m office is designed in a private office layout (gabinetowy), finished to a high standard. Double glazing ensures excellent acoustics and provides a high level of comfort for work. The premises are currently divided into the following rooms:
Representative reception area
- 6 private offices ranging from 14 to 38 sq m
- 3 conference rooms
- Kitchen
The Tenant has the possibility of leasing the premises with full furnishings/equipment.
The future Tenant will have access to 2 additional parking spaces in the underground garage.
A multi-storey car park is also available within a 5-minute walk. The office building offers amenities for cyclists ? parking, changing rooms, and a shower. Storage space is available within the building. Terraces accessible to all tenants are located on the 4th floor. The typical floor area is approximately 1,100 sq m.
NOTE! Short-term contract, possibility to lease the premises for 24 months!
We invite you to view the offer and... (The final sentence fragment in Polish is incomplete, but this covers the rest of the text.)
OCEŃ
5/5 (1)
LOCATION













