Quattro Business Park IV - Office Kraków-Śródmieście

  • biuro-do-wynajecia-malopolskie-krakow-krakow-srodmiescie-quattro-business-park-iv-12021356-1
  • biuro-do-wynajecia-malopolskie-krakow-krakow-srodmiescie-quattro-business-park-iv-12021356-2
  • biuro-do-wynajecia-malopolskie-krakow-krakow-srodmiescie-quattro-business-park-iv-12021356-3
  • biuro-do-wynajecia-malopolskie-krakow-krakow-srodmiescie-quattro-business-park-iv-12021356-4
Information / offer
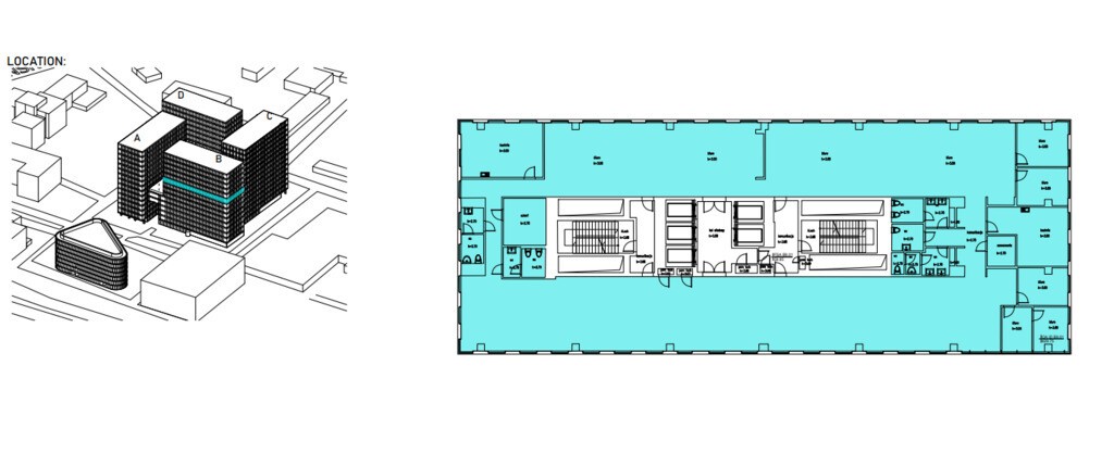
Building: Quattro Business Park IV
Number: 142593/3105/OLW
Area: 400.00 m2
Rent per sqm: 14.00 EUR / m²
The royalty: 18.50 PLN / m²
Available areas: 340.00 - 400.00
Building standard
Description
Quattro Business Park is a functional office complex located on Gen. Bora-Komorowskiego Avenue, one of Kraków?s main transport arteries. This prime location ensures quick and convenient access to the office, regardless of the chosen mode of transportation. The complex consists of multiple buildings offering office spaces equipped with suspended ceilings, raised floors, an access control system, air conditioning, and fiber-optic internet. Quattro Business Park features a green courtyard, serving as a relaxation area and a place for informal meetings. The surrounding area offers numerous service points, shops, parcel lockers, and medical facilities, allowing for the quick handling of daily errands. The complex holds an environmental certification, and its flexible office space arrangements adapt to tenants' needs.
OCEŃ
5/5 (1)
Contact us
more
more
LOCATION
more
more