Brama Oławska - Office

  • biuro-do-wynajecia-dolnoslaskie-wroclaw-brama-olawska-10793769-1
  • biuro-do-wynajecia-dolnoslaskie-wroclaw-brama-olawska-10793769-2
  • biuro-do-wynajecia-dolnoslaskie-wroclaw-brama-olawska-10793769-3
Information / offer
Building: Brama Oławska
Number: 71288/3105/OLW
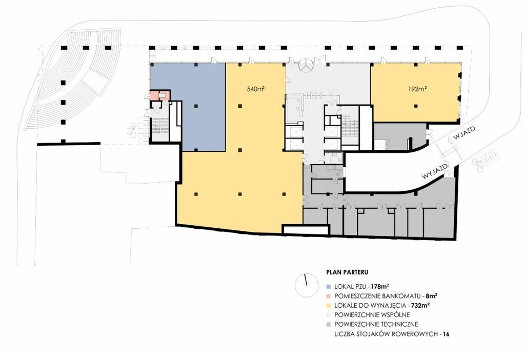
Area: 1216.00 m2
Rent per sqm: 24.00 EUR / m²
The royalty: 18.10 PLN / m²
Available areas: 810.00 - 1988.00
Building standard
Description
A newly built office building on the site of the former PZU building. Class A object with a total area of 14 thousand. sq m will be built in the very center of Wroclaw, at one of the largest transport hubs - Dominikański Square. The building will consist of 7 above-ground floors with a typical floor area of approx. 1,800 sq m and 3 underground floors with 140 parking spaces. The building will also include an electric car charging station, parking spaces for bicycles, as well as changing rooms and showers for cyclists. The architecture of the building will perfectly match the surroundings thanks to the combination of modern and traditional elements.
OCEŃ
5/5 (1)
Contact us
more
more
LOCATION
more
more